
Baag E Rehmat Sarkhej Ahmedabad

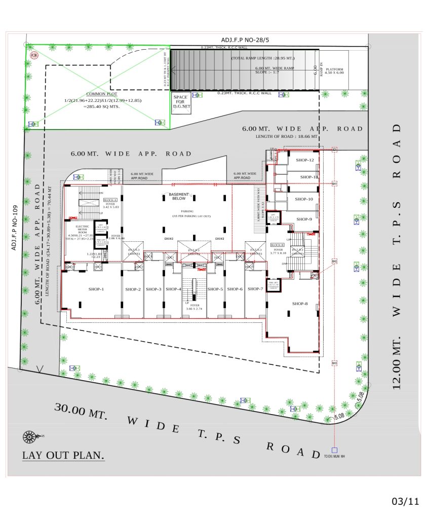
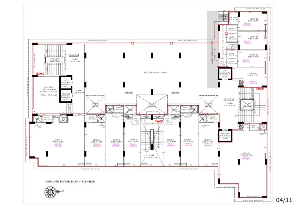
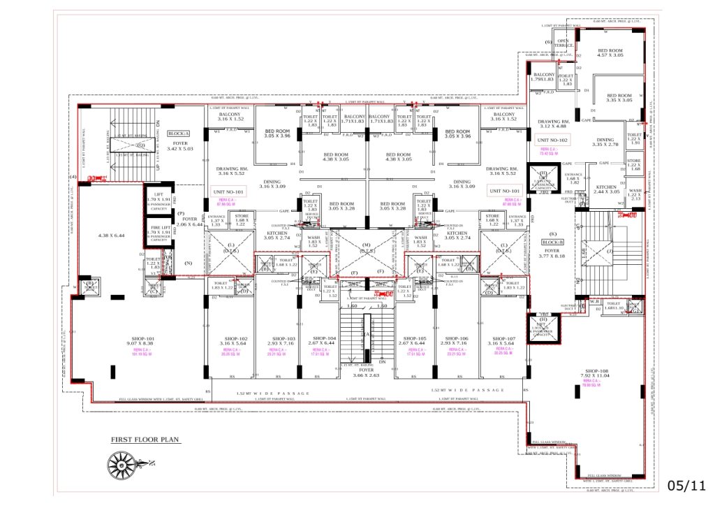
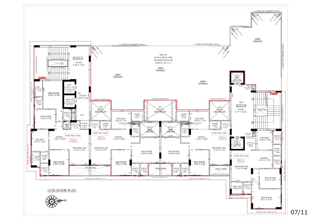
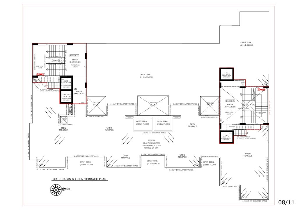
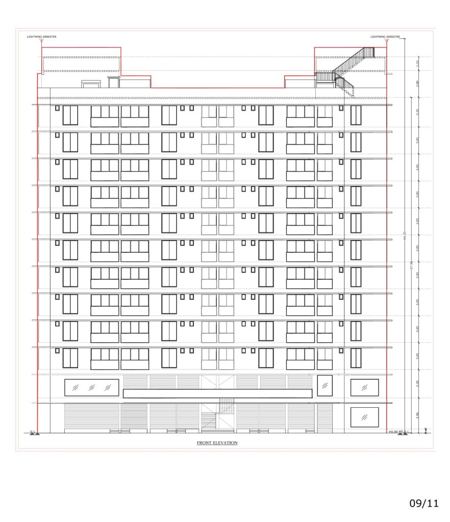
Baag E Rehmat is a project located in Ahmedabad, Gujarat, as detailed in the provided PDF file. The project includes features such as service ducts, parapet walls, safety grills, beams, electric ducts, and lifts.
Images










The architectural plans include details like full glass windows, railings, and pathways. The project also mentions a structure engineer named Jigish Parikh and an architect named Arnob Sengupta. For more specific details, you can refer to the PDF file provided.
The address and contact information for Baag E Rehmat project mentioned in the PDF file are as follows:
Address:
Baag E Rehmat
Survey No. 582/6, T.P. 85 Road,
Sarkhej, Ahmedabad, Gujarat - 380055
Contact:
F Y B Corporation
7/9, Maysore Tower, Beside Ellisbridge Post Office,
Ellisbridge, Ahmedabad, Gujarat - 380006
Contact No.: 079 2658 3855
For further details or inquiries, you can reach out to the provided contact number.
Amenities
The PDF file provides information about the amenities included in the Baag E Rehmat project in Ahmedabad, Gujarat. Some of the amenities mentioned in the document are as follows:
- Service ducts
- Parapet walls
- Safety grills
- Beams
- Electric ducts
- Lifts
- Full glass windows
- Railings
- Pathways
These amenities indicate a focus on safety, convenience, and modern architectural features in the project. For more detailed information or specific amenities, you may refer to the Brochure provided.
Specification
The specifications are categorized under several headings such as Structure, External Finish, Flooring, Doors, Windows, Kitchen, Toilets, and Plumbing. Each category describes the materials and features used.
For instance, the structure mentions an earthquake-resistant RCC Frame, the external finish includes a 100% acrylic paint over external grade texture, and flooring options include tiling in diverse areas like the living and dining rooms.
Additionally, details about doors specify the usage of wooden frames with flush doors laminated on both sides, and UPVC windows. The kitchen includes provisions for a granite working platform and a stainless steel sink, while the toilets feature anti-skid vitrified or porcelain floor tiles.
Plumbing and electrical work are also briefly mentioned, including the use of CPVC pipes and MCB/ELCB for electrical safety.




